
This design for a winter garden for mediterranean plants in Bonn originates from the shape of the plot and connects the surrounding streets through a public space. The plants are placed under a glass dome, that makes the building catch the eye from afar and defines it in the urban landscape.
The project was actively focused on structure, construction, building details and building systems that allow the garden function efficiently through out winter.
The work was done in a group of 6 with me as a leader.
Other group members: Dominik Glück, Chanyong Kim, Jiachen Zhu, Fangzhou Lu, Yizhi Wang
(All text on the drawings is in German)

Project Location

Geometry Development

Circulation Concept

Floor Plan

Fasade Sections

Cross-Section and Longitudinal Section

North Elevation

East Elevation

West Elevation

Daylighting and Natural Ventilation

Assembly Dome

Connection of Dome to the Concrete Roff

Model of the Building

Model of the Building

Detail Door

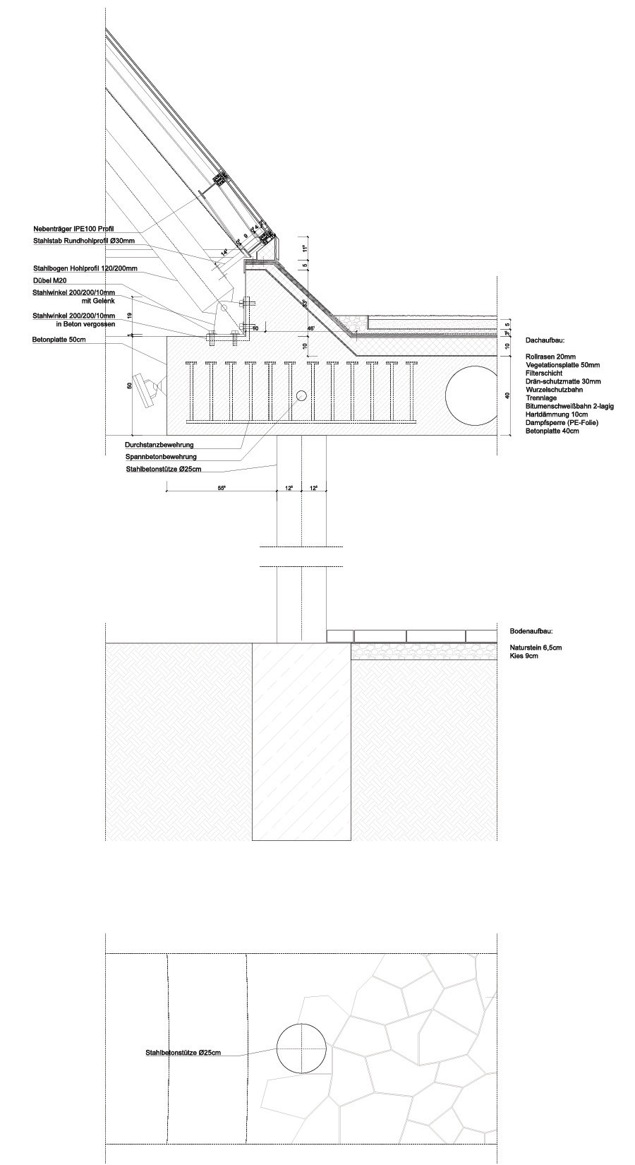
Detail Connection of Dome to the Roof and Column

Detail Dome Window

Detail Facade Section

View of North Facade